Subterranean Villas in Meganisi

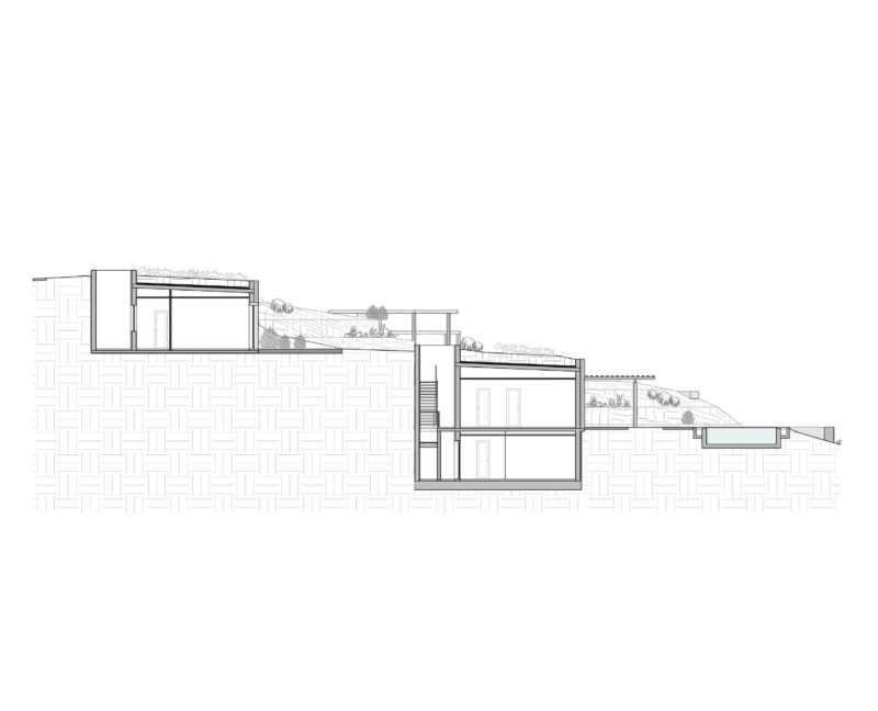
The project is located very close to the sea, on a site with an intact and rough natural landscape. While the initial brief aimed to fully utilize the buildable area, our proposal redirects the building mass mostly underground, allowing the landscape to remain continuous and reducing the visible footprint.
Because the buildings are primarily perceived from the sea, their exposed façades are treated as retaining structures, built with local white stone and integrated vegetation. Access to the three villas is organized through a discreet internal passage, followed by a gradual descent into each house. The main objective is to recover and preserve the natural terrain, introducing only the necessary paths and connections between inhabited spaces.




Completion Year: –
Status: Under Permitting
Built Area: 525sqm
Commissioned by: Private client
Architectural Study: Group Form
Lead Architect: Vassilis Tsesmetzis
Design Team: Olga Markou, Maria Palaiologou, Ioannis Kioses